PRODUCT DETAILS
Get Instant Clark ET-205 Forklift Troubleshooting the EV T15 Control Technical Training Manual - Download PDF
TABLE OF CONTENTS
About this Class
Class Objectives
Class Content
Sequence of Operations
Troubleshooting
About Safety
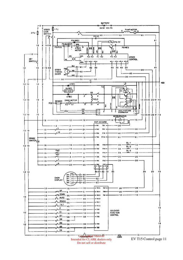
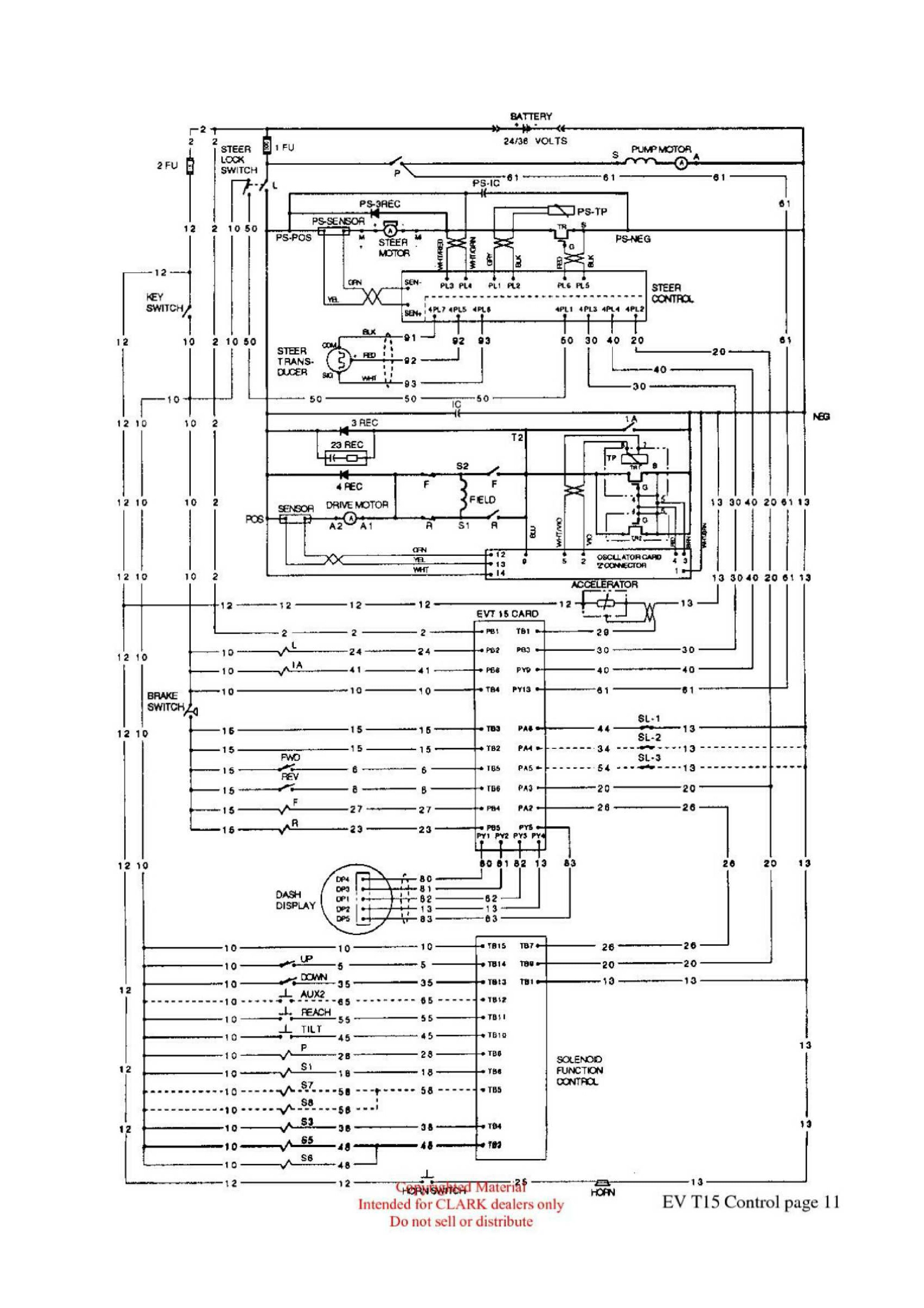
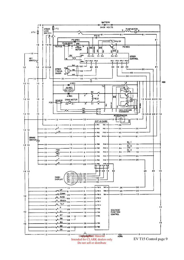
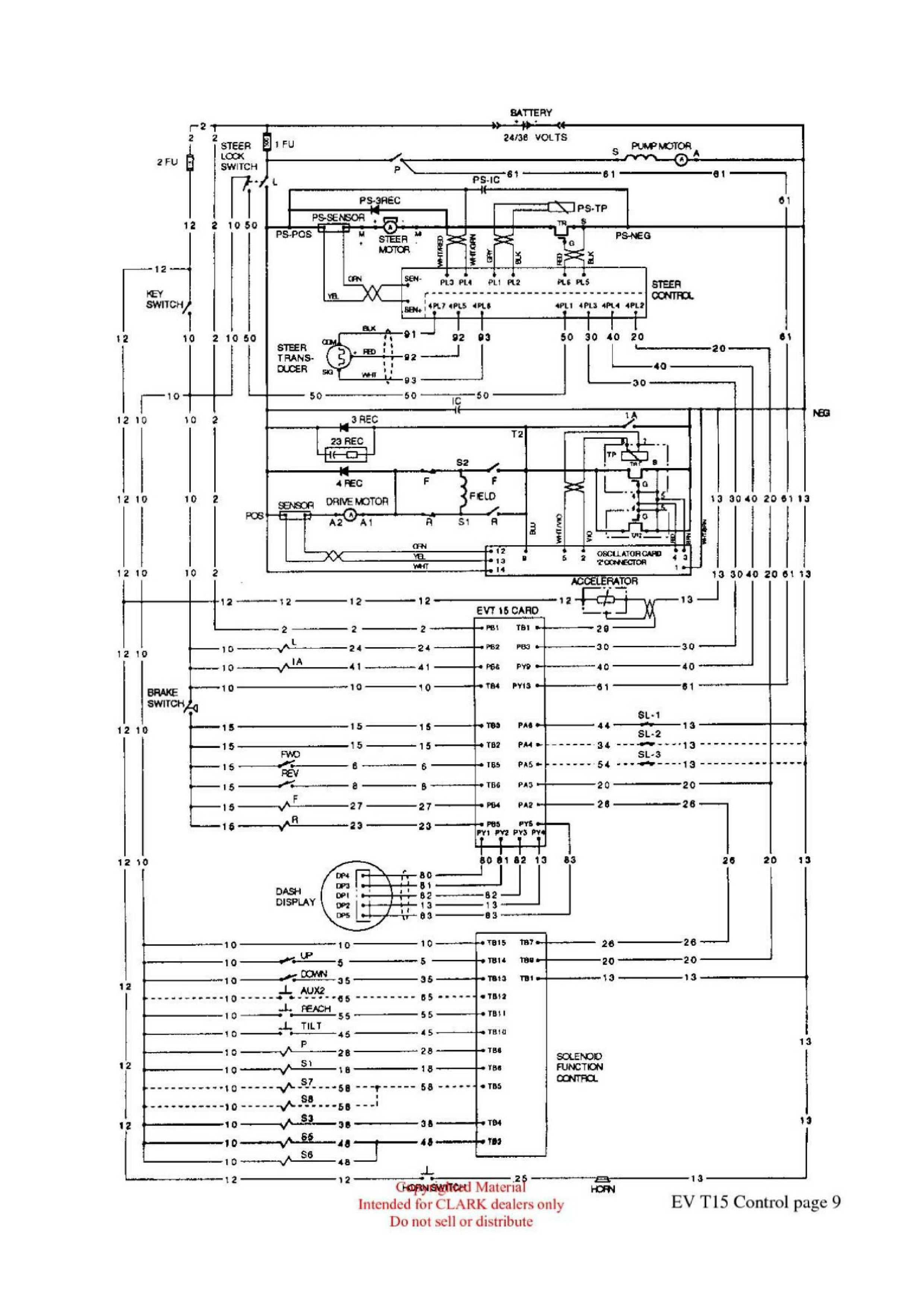
Section 1 EV T15 Control Sequence of Operations
Identification of Abbreviations
Identification of Schematic Symbols
Sequence 1 Drive Control
Sequence 2a Connect the Battery
Sequence 2b Connect the Battery
Sequence 3a Closing the Key Switch
Sequence 3b Closing the Key Switch (Cont)
Sequence 4a Steering Function
Sequence 4b Steering Function
Sequence 5 Brake Switch and SRO Checks
Sequence 6 Energizing the Directional Contactors
Sequence 7 Turning on the Transistors
Sequence 8 Turning off the Transistors, Flyback
Sequence 9 Accelerator, TP, and PMT
Sequence 10 1A Contactor operation
Sequence 11a Plugging Operation
Sequence 11b Plugging Operation
Sequence 11c Plugging Operation
Sequence 12 Travel Speed Limit
Sequence 13a Solenoid Functions
Sequence 13b Solenoid Functions
Sequence 14 Lift
Sequence 15 Lower
Sequence 16a Reach and Retract
Sequence 16b Reach and Retract
Sequence 17a Tilt
Sequence 17b Tilt
Sequence 18a Sideshifter (optional)
Sequence 18b Sideshifter (optional)
And more.....
Pages - 92
Instant Download – After Payment
Lifetime PDF And Access To Download (By Request)
Compatible With Windows, Mac, Ios, Android And Other Systems
Searchable Text And Built-in Index For Instant Information Search
Bookmarks
Printable – Pages Or Entire Manual
Zoomable – Detailed Exploded Diagrams, Picture


