PRODUCT DETAILS
Get Instant Clark SM-994 Straddle Stacker Service Repair Manual - Download PDF
TABLE OF CONTENTS
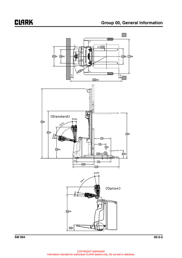
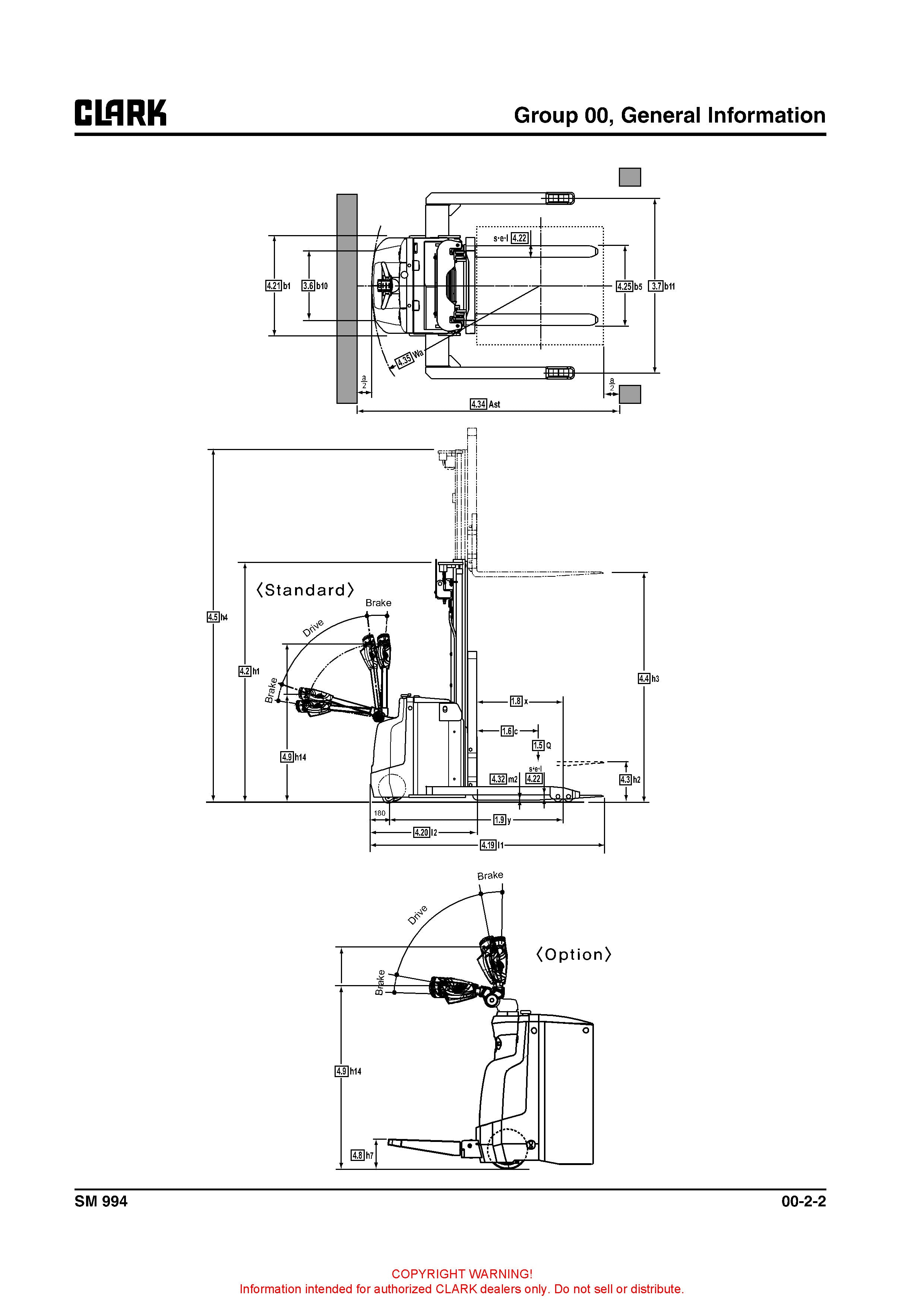
GROUP 00 GENERAL INFORMATION
GROUP 01 PERIODIC SERVICE
GROUP 02 STEERING SYSTEM
GROUP 03 DRIVE UNIT AND WHEEL
GROUP 04 BRAKE
GROUP 05 ELECTRICAL SYSTEM
GROUP 06 MOTOR CONTROLS
GROUP 07 HYDRAULIC SYSTEM
GROUP 08 UPRIGHTS
Pages - 308
Instant Download – After Payment
Lifetime PDF And Access To Download (By Request)
Compatible With Windows, Mac, Ios, Android And Other Systems
Searchable Text And Built-in Index For Instant Information Search
Bookmarks
Printable – Pages Or Entire Manual
Zoomable – Detailed Exploded Diagrams, Picture.


