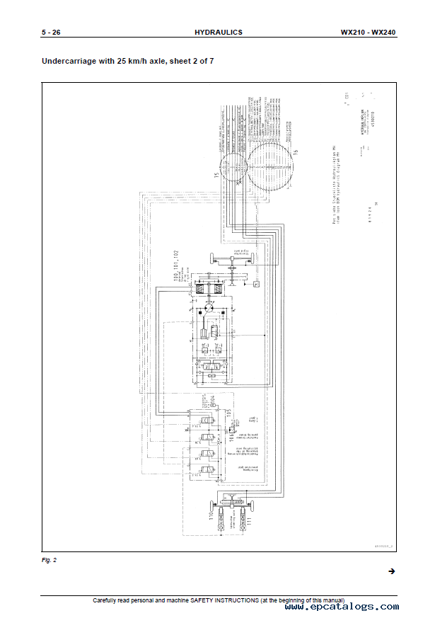
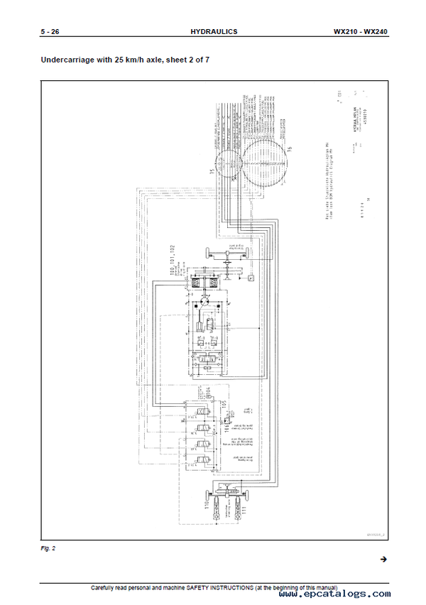
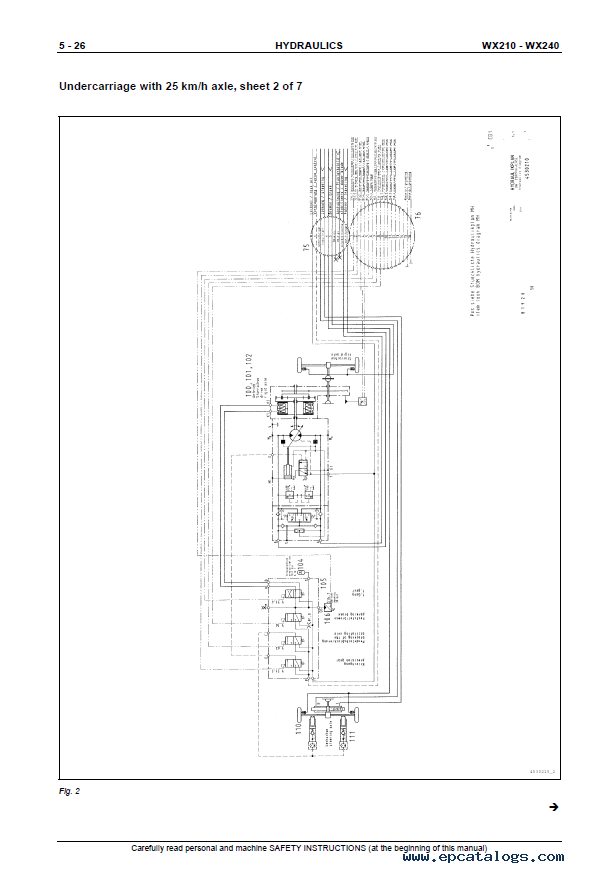
PRODUCT DETAILS
Case WX210 WX240 Hydraulic Excavator Workshop Service Repair Manual
Language: English, French
Format:PDF
Platform: Windows and Mac
Delivery: Instant Download After Payment.
Case WX210 WX240 Hydraulic Excavator Workshop Service Repair Manual
Language: English, French
Format:PDF
Platform: Windows and Mac
Delivery: Instant Download After Payment.
What are you looking for?